Descrizione immobile
Immagina di uscire di casa e raggiungere il mare in pochi passi, sentendo il profumo della salsedine e il suono delle onde come colonna sonora delle tue giornate.
A Spiaggiabella, Marina di
Lecce, proponiamo in vendita una villetta indipendente che racchiude il perfetto equilibrio tra mare, privacy e spazi da vivere.
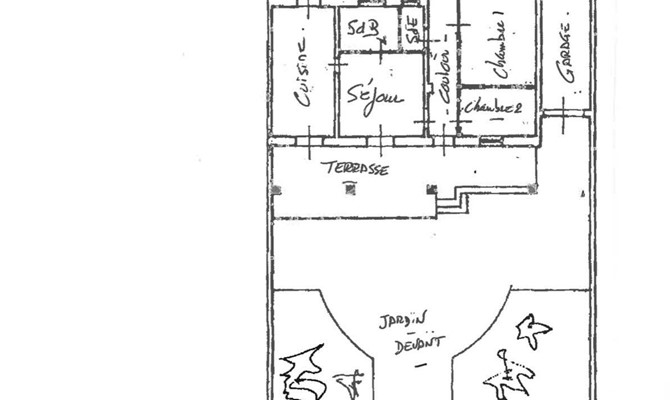
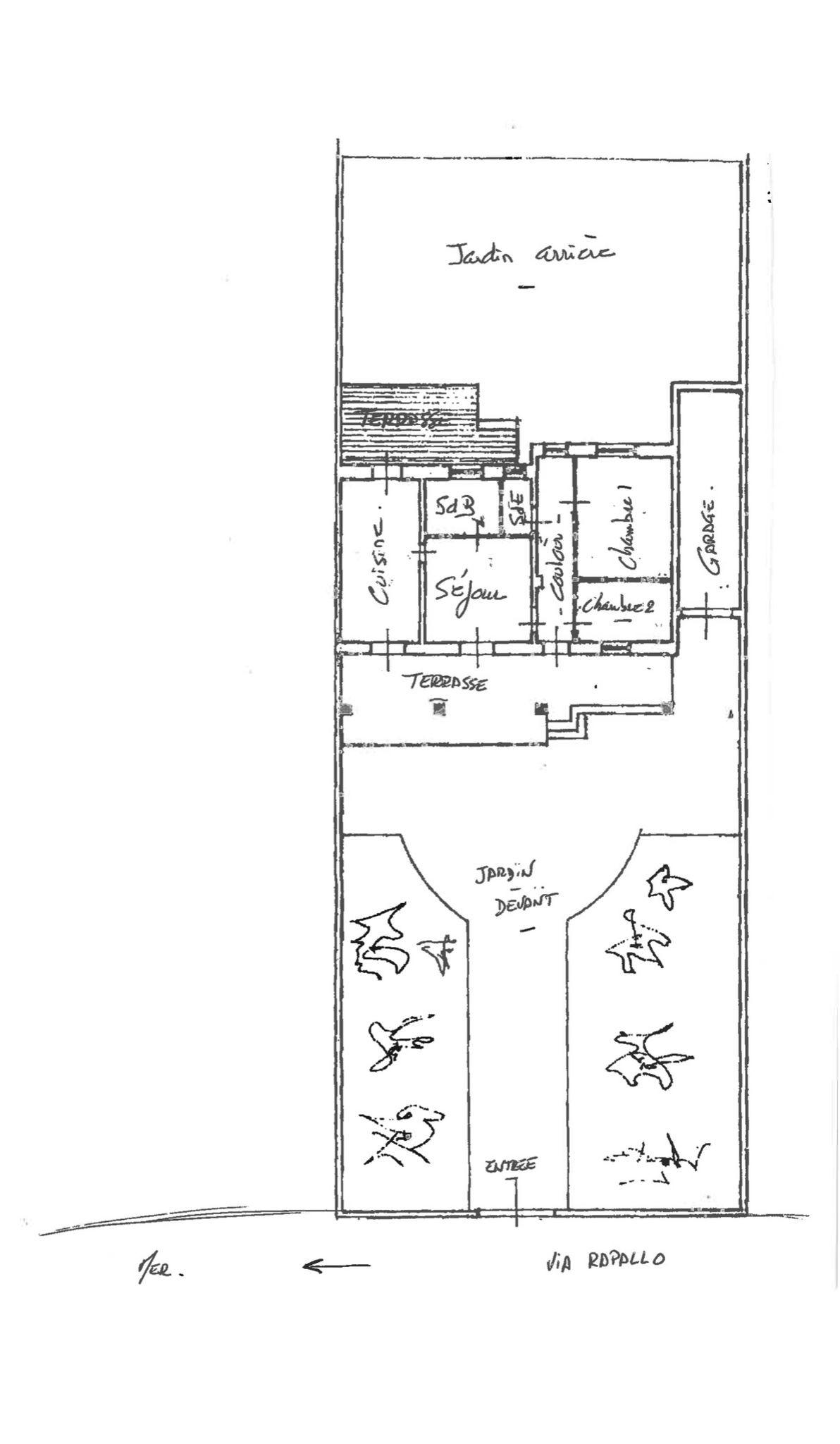
La proprietà è circondata da un giardino privato di circa 500 mq, un’oasi verde pensata per ogni momento della giornata: una zona pavimentata, comoda anche per il parcheggio, e una parte più naturale con alberi da frutto, angoli ombreggiati e una vera zona relax, ideale per leggere, pranzare all’aperto o godersi le serate estive. La presenza di una doccia esterna e di due verande rende l’esperienza all’aperto ancora più piacevole e funzionale.
L’abitazione, di circa 125 mq, accoglie con ambienti luminosi e ben distribuiti:
un soggiorno conviviale, una cucina abitabile perfetta per la vita quotidiana, due camere da letto e due bagni, pensati per il comfort della famiglia e degli ospiti.
Completa la proprietà un garage di circa 20 mq.
La villetta si presenta in buone condizioni generali ed è venduta completa di arredi, pronta per essere vissuta fin da subito.
Una casa dove il mare diventa parte della vita quotidiana, ideale come residenza estiva, casa per le vacanze o investimento di valore nel tempo.
Contattaci per maggiori informazioni o per prenotare un appuntamento direttamente sul posto.